Skip to main content
 

VIGO Garden Suite

612 square feet - Living Space

2 Bedrooms

612 square feet – Living Space

Rooms: 2-3 bedrooms, 1-3 bathrooms, optional den or walk-in closet

Fixed price

Transparent price for a finished house with foundation, documents from 336 000 CAD, completed in 3-4 months.

Green construction

Construction without concrete work, on a pile foundation that does not damage the land plot.

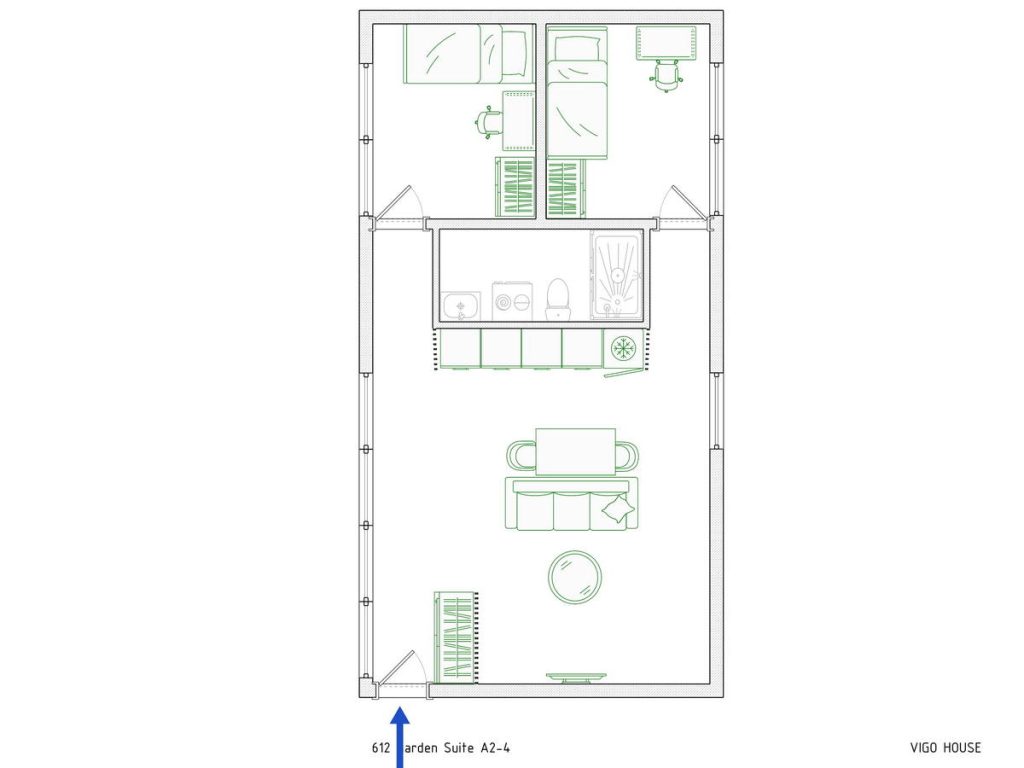
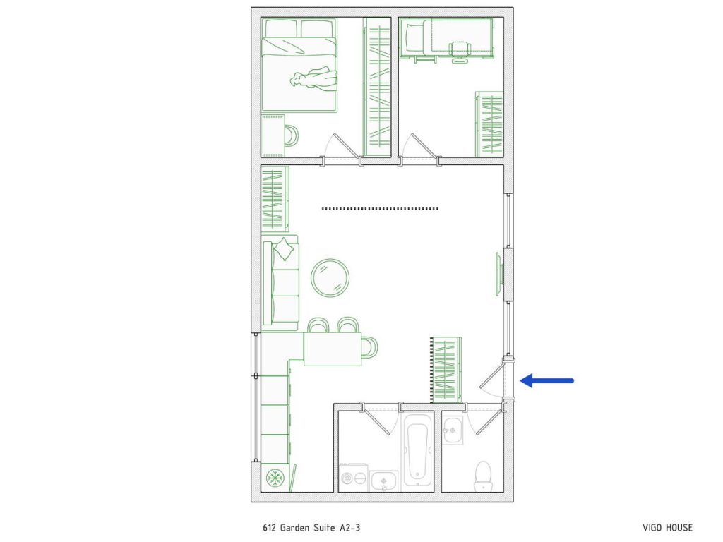
Garden Suite layout

Our house designs maximize open space, with room layouts independent of the structure. Clients can easily adjust room sizes or move walls. The presented floor plans showcase the flexibility of our designs.

Please select a package to view the details:

Base
Prime
Pro
A++ (Very High Efficiency): Excellent choice for most homes, providing high heat retention and energy savings.
Price:

336 600 CAD

Warranty: 20 Years
Documents: Included
A+++ (Maximum Efficiency): Best choice for minimal heat loss, maximum comfort, and significant heating cost savings.
Price:

370 200 CAD

Warranty: 30 Years
Documents: Included
NET Zero: A fully autonomous home designed with maximum energy efficiency. Ideal for remote locations without access to utilities, providing unparalleled freedom and harmony with nature.
Pricing: To Be Announced
Warranty: To Be Announced
Documents: Included
FeatureStatusDetails
Home kit with installationIncludedSemi-rigid stone wool insulation R-24
Foundation: geo screwsIncludedPile foundation
BathroomIncludedToilet, washbasin, shower cabin
KitchenIncludedBasic kitchen kit
FinishingIncludedStandard HVAC
HeatingIncludedElectric floor heating, electric water heater
WindowsIncludedTriple-glazed windows IEO=5.11
DocumentsIncludedBuilding Permit
TerraceOptional100 CAD/sqft
Roof GardenOptional100 CAD/sqft
DrainageIncludedOutdoor drainage
SafetyNot IncludedSecurity System
Warranty20 Years
Total Price (without tax)313 636 CADTax - depending on the province
FeatureStatusDetails
Home kit with installationIncludedClosed-cell spray foam insulation R-28
Foundation: geo screwsIncludedPile foundation + foundation insulation
BathroomIncludedToilet, washbasin, shower cabin
KitchenIncludedEnhanced kitchen kit
FinishingIncludedHeat recovery ventilator - HRV
HeatingIncludedElectric floor heating + smart thermostat, electric water heater
WindowsIncludedTriple-glazed windows + argon +thermofoil IEO=5.23
DocumentsIncludedBuilding Permit
TerraceOptional100 CAD/sqft
Roof GardenOptional100 CAD/sqft
DrainageIncludedOutdoor drainage
SafetyIncludedSecurity (Fire and water leakage)
Warranty30 Years
Total Price (without tax)333 363 CADTax - depending on the province
NET Zero Home

NET Zero Features

  • Fully autonomous design
  • Maximum energy efficiency
  • Designed for remote locations

Price: To Be Announced

Warranty: To Be Announced

Comprehensive Structure with Details - What's Included and Excluded in the Package

1. Design, Materials, and Services
  • (1) Material Package
    • Includes:
      • Material package (design and structural elements).
      • Conceptual drawings.
    • Excludes:
  • (2) Administrative and Service Tasks
    • Includes:
      • Registration in the Provincial Home Warranty program.
      • Technical supervision of the project.
      • Interior design services.
      • Site cleanup.
    • Excludes:
      • Winter construction and challenging site access.
2. Site Work and Foundation
  • (3) Site Improvements
    • Includes:
      • Drainage for A++ and A+++ packages.
    • Excludes:
      • Excavation, backfilling, and drainage.
      • Utility connections.
  • (4) Foundation
    • Includes:
      • Geo-screws, grillage, and foundation sheathing around the perimeter.
      • Insulation under the foundation.
    • Excludes:
      • Alternative foundation options (e.g., concrete strip foundation).
      • Waterproofing works.
3. Construction to Lock-Up Stage
  • (5) Main Construction Works
    • Includes:
      • Installation of walls, windows and doors and exterior panels.
      • Roof with CertainTeed Landmark shingles (with ice protection).
    • Excludes:
      • Balconies, railings, and deck installations.
  • (6) Additional Lock-Up Options
    • Excludes:
      • Decorative beams and painting.
      • Decorative roofs and exterior panels.
4. Engineering Systems
  • (7) Electrical Works
    • Includes:
      • Basic electrical system installation.
      • Smart lighting and security systems in A++ and A+++ packages.
    • Excludes:
      • Ceiling lights.
      • Smart lighting and security systems outside A++ and A+++ packages.
  • (8) HVAC (Heating, Ventilation, and Air Conditioning)
    • Includes:
      • Mini-split system installation.
    • Excludes:
      • HRV systems.
      • Underfloor heating and boilers.
5. Interior Finishing
  • (10) Insulation
    • Includes:
      • Wall and ceiling insulation (A++ and A+++ packages meet energy efficiency standards).
    • Excludes:
      • Garage and basement insulation.
6. Furniture and Plumbing Fixtures
  • (14) Plumbing Fixtures
    • Includes:
      • Installation of one sink, shower, and toilet.
7. Flooring and Stairs
  • (16) Interior Stairs and Railings
    • Excludes:
      • Decorative stair finishes and railings.
8. Specialized Elements and Additional Structures
  • (12) Stand-Alone Buildings
    • Excludes:
      • Garages, sheds, and other structures.
9. Building Permits and Inspections
  • Documents
    • Includes:
      • Zoning verification.
      • Scanning for underground utilities.

A versatile solution for both investment and personal use. Offers flexible options, including a garden suite, standalone housing, or part of a larger residential complex

This project offers the opportunity to be installed on various plots, whether as a small garden cottage, standalone house, or residential complex.

Comfort and Amenities:
  • Maximum Flexibility in Planning: Plan your space according to your needs and preferences.
  • Easy Replacement of Wall Blocks with Windows: The possibility of easy adaptation of premises, providing more natural light and space.
  • Terrace: Enjoy the fresh air and beautiful views of the surrounding nature from a spacious terrace.
  • Operated roof: The opportunity to use the roof as additional space for relaxation or greening.
  • Wide Range of Facades: Choose from a variety of designer solutions to create a unique exterior for your home.

Ready to Learn About Our Process?

Our “How It Works” FAQ provides a comprehensive guide to building with VIGO HOUSE, covering everything from initial concepts to project completion.

Contract Signing and Prepayment

Contracts can be signed and prepayments made either at our showrooms in Toronto and Vancouver or directly at your construction site. Upon prepayment, you will deposit 10% of the project cost and a fixed payment of CAD $20,000, which covers the cost of obtaining all necessary permits, including Survey, Zoning, Site Plan, Grading Plan, and Building Permit, as well as all municipal fees.

Payment Information
Payment is structured to align with the stages of construction:

  • 10% – Upon signing the contract: Prepayment of the project cost.
  • 15% – Readiness for kit production: Payment is made when all materials are ready to begin production.
  • 20% – Readiness for foundation and framing construction: Payment is made when foundational and framing construction begins.
  • 20% – Readiness for installation of exterior cladding and mechanical systems: Payment is made when the installation of external elements and mechanical systems occurs.
  • 15% – Readiness for insulation: Payment is made when the home is ready for insulation work.
  • 10% – Readiness for interior finishing and painting: Payment is made when interior finishing and painting work begins.
  • 10% – Completion of construction and PDI (Pre-Delivery Inspection): The final payment is made after the construction is completed and the pre-delivery inspection is conducted.

This staged payment plan is designed to match key construction milestones, ensuring transparency and predictability in financial transactions.

Book an

Free  Online Meeting

Get Expert Advice and Start Your Project Right

Schedule your free 30–45 minute online consultation with VigoHouse experts and get comprehensive answers to all your questions about construction, custom layouts, innovative technologies, and the pricing of your project.

What You’ll Get During the Online Meeting:

  • Detailed answers about technologies and project dimensions
  • Clear understanding of pricing and project stages
  • Customization options and individual home furnishing solutions
  • Information about additional services and ongoing support from VigoHouse

Additional Benefits After the Meeting:

  • Exclusive preliminary version of your Pre-Survey delivered the next day after your consultation (typically valued around CAD $500)
  • Detailed analysis of your lot, recommending suitable home formats according to local building regulations
  • Completely free for VigoHouse clients

Don’t miss this opportunity to receive professional guidance and confidently move forward with your project!

Fill out the short form below and book your consultation now!


Investment Advantages:
  • Transparent Cost: A ready-made house with already laid utilities ensures clarity in financial calculations (excluding external connections, the cost of which depends on the region and associated permits).
  • Structural Flexibility: Maximum freedom in planning allows for the creation of unique spaces that can attract tenants from different target groups, ranging from students to families.
  • Modern Design: Stylish facades, spacious windows, and modern smart home systems make the property attractive to investors and tenants.
  • Energy Efficiency: Designed with adherence to energy efficiency standards, the house reduces operational expenses, which is an important criterion for tenants and buyers.

Similar Completed Projects

Advantages of Investing with VIGO HOUSE

With innovative tools, expert consultations, and full legal support, investing with VIGO HOUSE becomes a transparent and efficient process

[formaQ id=”1″ type=”popup” align=”right” ]